Medinis „Timbela“ sodo namelis gali būti pritaikytas didesnei sodo technikai laikyti, dirbtuvėms, ar kaip erdvi sandėliavimo erdvė, kurioje tvarkingai sandėliuosite dviračius, automobilio padangas, ar sode reikalingus įrankius. Sutvarkykite savo sodą ir mėgaukitės lauko erdve labiau nei bet kada.
Mediniai nameliai gaminami naudojant tik aukštos kokybės džiovintą bei obliuotą FSC® C110730 sertifikuotą pušį/eglę. Aukšta medienos kokybė pasižymi nedideliu ir smulkiu šakotumu, lygia ir šviesia medienos spalva.
Lengvai surinksite namelį dėka aiškios ir tikslios instrukcijos.
Stogo danga, medvaržčiai, lankstai ir visos reikalingos surinkimui detalės yra įtrauktos į bendrą paketą.
Techniniai duomenys:
Medžiaga: džiovinta obliuota pušis/eglė, FSC® C110730 sertifikuota mediena.
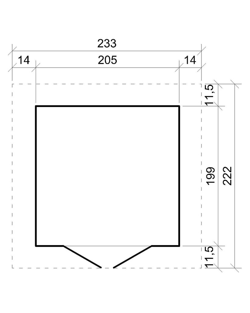
Išoriniai matmenys: A228 x 233 x 222 cm
Pagrindo matmenys: 199 x 205 cm
Plotas: 4.08 m2
Namelio svoris: 294 kg
Sienų lentelių storis: 17 mm
Grindų lentelių storis: 19 mm storio impregnuotos medinės lentelės.
Stogo danga: OSB-3 (12 mm) + pilka bituminė danga
Durų matmenys: 118 x 176 cm
Langų matmenys: 22 x 65 cm
Pakuotės matmenys: H72 x 100 x 200 cm.
Garantija 2 metai
PASTABA:
– Naudojama mediena yra nedažyta, todėl patartina prieš namelio surinkimą 2 kartus impregnuoti medines lenteles, o surinkus namuką, dar ir nedelsiant jį nudažyti, tam kad apsaugoti nuo aplinkos veiksnių.
– Dėl medienos savybių matmenys gali skirtis 1-2 mm.
– Užsakymas pristatomas kaip įmanoma arčiau namo prieigų! Jeigu nėra galimybės didelei transporto priemonei įvažiuoti į kiemą, krovinys iškraunamas ten, kur galimas privažiavimas, todėl prieš įsigyjant prekę, įsitikinkite, kad jūsų namus gali pasiekti didelio dydžio vilkikas. Pristatymui PRIVALOMAS telefono numeris. Jei nėra galimybės susisiekti su pirkėju, kurjeris negalės pristatyti prekių!
Nameliai įrankiams
Turintiems nuosavą kiemą ar sodybą, neretai iškyla daiktų laikymo problema. Dažniausiai naudojami sodo įrankiai reikalauja tam tikros priežiūros bei apsaugos, tad siūlome jų sandėliavimo išeitį – namelius įrankiams. Ši patogi sandėliavimo patalpa sudarys idealias sąlygas laikyti ne tik smulkius rankinius sodo įrankius, tokius kaip grėbliai, kauptukai ar sekatoriai, bet ir visus reikalingus didesnių gabaritų sodo technikos prietaisus, tokius kaip žoliapjovės, kopėčios ar kastuvai. Nameliai įrankiams būna įvairių dydžių, tad belieka nuspręsti, kiek daiktų bus laikoma juose ir pagal tai rinktis sau tinkamą prekę. Tvirta namelių medžiaga, nesvarbu ar tai būtų metalas, ar aukštos kokybės plastikas, apsaugos nuo nepalankių oro sąlygų ir žalingo drėgmės poveikio, tad viduje esančių daiktų būklė bus ideali. Patikimas gaminys tarnaus ilgai, o stilingas dizainas papuoš kiemą. Jų viduje galėsite įsirengti įvairių dydžių lentynas, kurios užtikrins tvarkingą ir funkcionalią aplinką. Paprastas montavimas, stabili konstrukcija, atsparumas aplinkos poveikiui ir mechaniniams pažeidimams, plati stilių bei dydžių įvairovė leis džiaugtis išspręsta daiktų laikymo problema dar ilgai.
Daugiau prekių iš šios kategorijos
- Medinis „Timbela“ sodo namelis ir jo panaudojimo galimybės: Šis medinis namelis gali būti naudojamas kaip laikymo vieta sodo technikai, dirbtuvės arba sandėliavimo erdvė, kurioje tvarkingai bus laikomi įrankiai, dviračiai ir kitos reikmės.
Kokia medinio „Timbela“ sodo namelio medžiaga ir kokios jo pagrindinės savybės?
Medinis „Timbela“ sodo namelis yra pagamintas iš aukštos kokybės, džiovintos ir obliuotos FSC® C110730 sertifikuotos pušies arba eglės medienos, pasižyminčios nedideliu šakotumu, lygia ir šviesia spalva.













